Castello di Cenate Sotto - PROPRIETÀ

Da EFL - Società Storica Lombarda.
Situazione delle proprietà al 1373
Situazione delle proprietà al 1477
Situazione delle proprietà al 1526
Situazione delle proprietà al 1580-90
Situazione delle proprietà al 1592
Situazione delle proprietà al 1604-20
Situazione delle proprietà al 1628
Situazione delle proprietà al 1700
Situazione delle proprietà al 1718
Situazione delle proprietà al 1761
Situazione delle proprietà al 1767
Situazione delle proprietà al 1800
Situazione delle proprietà al 1812
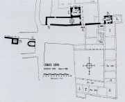
Il castello nella mappa catastale del 1812
Situazione delle proprietà al 1845
Il castello nella mappa catastale del 1845
Il castello nel disegno dell'ingegner Angelini (1943)

Torna a Castello di Cenate Sotto

Vai a Lupi

Vai a Suardi


Gabriele Medolago – Francesco Macario, IL CASTELLO DI CENATE SOTTO E LA FAMIGLIA LUPI, pp. 101-110:

Non sappiamo di chi sia stato inizialmente il castello. Forse fu un possedimento della famiglia da Cenate, che sembra aver avuto una qualche prerogativa giurisdizionale. Di un legame fra di essa ed il castello però non abbiamo documenti. Dividiamo l’esposizione in quattro parti: la prima relativa ai Suardi, la seconda al passaggio ai Lupi ed ai riferimenti di non ben chiara identificazione; passiamo poi ad un terzo capitolo sulla parte sud con un sottocapitolo attinente alla porzione appartenuta al ramo dei Lupi di Borgo San Tomaso ed infine ad un quarto, relativo alla proprietà della parte nord, cioè dei Lupi di Pignolo e successori.


L’ORIGINE ED I SUARDI

Non disponiamo di documentazione sulla proprietà del castello prima del 1373, quando lo troviamo citato come in parte di Guglielmo fu Ameo Suardi, del ramo della famiglia Suardi detto dei Baldi dei Ruggeri . Due anni dopo la proprietà risulta frazionata fra famiglie diverse, i Suardi, i Mozzi, i Bozzi, i Madii, i Gargani ed i Lanzi, e viene in gran parte riaccorpata nelle mani di Guglielmo.

A Cenate vi furono ampie proprietà della famiglia Suardi. Interessante è notare come si trovino numerosi esponenti di rami molto diversi ed abbastanza lontani da quello di Guglielmo. Ad esempio nel 1362 in località Visnat troviamo beni del milite Alberto Suardi, il cui antenato comune con Guglielmo era Lanfranco di Ruggero, già morto nel 1213, nel 1389 beni di Scipione Suardi , di cui ne troviamo anche nel 1392 (quando era già stato creato milite e compare quindi come milite Scipione), del milite Giacomo e degli eredi del milite Guglielmo e degli eredi del milite Mazzolo . L’antenato comune era un altro Guglielmo figlio del già citato Lanfranco di Ruggero, già morto nel 1226. Nel 1442 troviamo beni degli eredi di Gualterio Suardi, mentre nel 1477 abbiamo beni degli eredi di Suardino Suardi, del ramo di Trescore. Nel caso in cui fossero beni pervenuti per eredità sarebbero risalenti almeno alla prima metà del XIII secolo.

Già il 27 gennaio 1336 troviamo interessi dei Suardi a Cenate. Infatti in quella data il notaio Adamino da Crene, a nome di Ameo fu Lanfranco fu Baldo Suardi Cittadino di Bergamo, acquistò da Beato fu Pietro Beati Cittadino di Bergamo, per un terzo, da Leonetto fu Bonafede fu Bonaventura Beati a nome suo e di suo fratello Giovannino di cui era curatore generale ed a nome dei fratelli Bertolino e Filippino di cui era tutore e dei cui beni aveva fatto inventario con atto di Rogerio da San Gervasio, per un altro terzo, e da Pasino ed Alessandro fratelli fu Asiato fu suddetto Bonaventura per il rimanente terzo, tutti i diritti che avevano contro Detesalvo fu Rogerio e Bianco fu Galizio Maifredi Maiochi e Oberto Leoni già consoli “gentilium et populi et universitatis”, cioè dei nobili e popolari e della totalità del Comune di Cenate, e Madino fu Giovanni Madii, Alberto Damasolli, Zambone Morandi, Degoldo fu Alberto Redulfi, Todeschino di ser Guala, Pagano di Maifredo, Giovanni fu Facio, Alberto Carismi, Brobo fu ser Pietro de Brolo, Girardo Salvetti, Belolo Truchi, Lanfranco di Bonfilio ed Oberto di Giovanni dell’Animella di Cenate credendari del Comune “gentilium et populi et universitatis” di Cenate, e Oberto di Madio, Pietro de Bozza, Redolfo di ser Pietro Redolii, Alberto di Lanfranco Atte, Alberto di ser Martino Domaselli, Giacomo di Giovanni Andrea, Alberto di Lanfranco ser Bonzani, Girardo di Lanfranco Carini, Andrea di Giacomo di ser Pietro Martini, Enrico di ser Pietro, Lanfranco di ser Guizardo, Nicola fu Alberto di ser Giovanni, Teutaldo Avanci Peloxi, tutti di Cenate, vicini del Comune, per atto del notaio Giovanni Mantovani dell’8 marzo 1305.

Si può ipotizzare che a questa cessione non fosse estraneo il castello. È infatti plausibile che l’acquisizione di questi diritti abbia poi portato Ameo o suo figlio Guglielmo (che troviamo effettivamente proprietario del castello di Cenate) al possesso di una porzione o di quote del fortilizio, iniziando una politica che verrà portata a termine da Guglielmo stesso che assommerà in sé l’intera proprietà del castello. In questo caso ci troveremmo di fronte ad un castello nel quale vi erano ancora nel XIV secolo ampi diritti comunali, sia dei nobili che dei popolari. Un analogo esempio è quello dell’acquisizione del castello di Grumello del Monte da parte del cardinal Guglielmo Longhi degli Alessandri di Adrara († 1319), avvenuta per un quarto nel 1309 da Folchino da Tagliuno, Canonico di Telgate, e per il rimanente nel 1317 dai consoli e credendari del Comune dei gentili e popolari di Grumello, che all’epoca si trovava in ristrettezze economiche.

Nel 1348 troviamo proprietà degli eredi di Ameo Suardi a Cenate.

Il 6 aprile 1330 troviamo i fratelli Baldino, Ameo e Gentilino fu Lanfranco fu Baldo dei Ruggeri, eredi del padre per un terzo ciascuno, per divisione fatta . L’11 aprile 1337 troviamo i fratelli milite Baldino, Ameo e Gentilino eredi di Baldo . Il 21 ottobre 1341, con atto di Adamino da Crene, nella sua casa in vicinia di San Matteo (detta anche di San Maffeo), Ameo fece testamento, lasciando eredi i figli Guglielmo e Baldino ed eventuali propri figli nascituri dalla moglie Andriola fu Filippo Casati . Due divisioni fatte fra i fratelli Guglielmo e Baldino fu Ameo, la prima con atto di Giovanni di Zambone da Cenate del 20 dicembre 1357 e la seconda del 6 dicembre 1359 con atto di un notaio ignoto, non sono al momento reperibili.

Nulla si trova riguardo al castello di Cenate nella divisione del 10 febbraio 1368 fatta con atto di Todeschino Pilis in Antescolis nella casa di Baldino, teste Palamino fu Ameo, fra Guglielmo e Baldino milite fu Ameo, che richiama divisioni già fatte 4 dicembre 1367 in atti dello stesso Pilis con Baldino milite e Gentilino fratelli fu Lanfranco.

Nel 1373, come abbiamo visto, a Cenate, nel luogo detto al Castello, vi era un ‘ospizio’ di Guglielmo fu Ameo Suardi.

Il 18 giugno 1375 Pezzolo fu Rusca Zucchi di Trescore, ‘servitore’ del Comune di Bergamo, per Graziolo Cusadei di Crema giudice all’ufficio delle ragioni del Comune, a nome del podestà milite Pietro Visconti di Milano, per atto di Bartolomeo Biotti del 9 giugno, in pregiudizio di Donato fu Bertramo Mozzi, Alessandro fu Alessandro Bozzi, della vicinia di Sant’Andrea, Guglielmo detto Pelato fu Uguzzone Madii di Cenate, immise Zambone fu Martino da Prezzate, procuratore di Guglielmo fu Ameo Suardi della città di Bergamo per procura di Todeschino Pilis del 24 agosto, nel possesso di una terra sedimata, casata, ceppata, con una torre pavionata e con all’interno un celtro e con aia ed orto, aratoria e vitata, con un torchio e diversi generi di piante, di 9 pertiche, nel luogo di Cenate detto al Castello, confinante ad est con Guglielmo stesso, a sud con Lodovico Gargani Cittadino di Bergamo, ad ovest con una via, a nord ancora con Guglielmo ed in parte con Peccino Lanzi. Nel documento si menziona la porta della detta terra, verosimilmente l’ingresso del castello.

Il 5 giugno 1378 nel luogo di Cenate nel castello di Guglielmo fu Ameo il già citato Zambone da Prezzate (che sembra quasi essere una specie di fattore del Suardi) ricevette una promessa di pagamento da Manzino fu Maffeo fu Giovanni da Gandino, Bonetto fu Girardo Coffeni, Pero fu Zambone di Antrea Panigali e Giugno fu Piazetto tutti di Gandino.

Il 2 dicembre 1396 troviamo citati in vicinia di San Matteo l’ospizio di abitazione di Enrico e lui e suo fratello Pietro, eredi per due terzi del padre Guglielmo fu Ameo Suardi . L’altro terzo spettava al fratello Giovanni.

Con testamento del 1403 Enrico lasciò eredi i figli per un quarto ciascuno e tutrice la moglie Lucina, che fu confermata nella tutela per atto di Gasparino Mozzi ed iniziò a fare l’inventario . Alla sua morte, avvenuta nello stesso anno, la proprietà passò ai suoi figli ed in seguito solamente al primogenito Guglielmo.

IL PASSAGGIO AI LUPI

A seguito della confisca dei beni conseguita al bando subito da Guglielmo fu Enrico Suardi il 4 novembre 1441 i beni passarono alla Camera fiscale e con Ducale del 17 maggio 1442 e successiva presa di possesso del 1° giugno ai Lupi.

Il 16 aprile 1477 nella vicinia di Antescolis, nella casa di abitazione di Bona fu Guglielmo Rota della Pianca, vedova del condottiere Detesalvo, si procedette alla divisione fra i figli di questi. In essa troviamo citati Filippo e Girardo, che intervennero di persona, Francesco di Marino Bresciani, procuratore di Bernardino come da atto di Stefanino d’Albino, Pedrino e Detesalvo, di età fra i 14 ed i 18 anni, tutelati dalla madre, che tennero i beni in comune. L’atto venne rogato ed imbreviato dal notaio Gaspare Serguarneri, assistito, come secondi notai, da Giacomo del dottore in Legge Giovanni Sonzogni e da Gerolamo di Benzino Adelasi.

Nella polizza d’estimo di Giovanni Maria fu Pedrino Lupi del 22 febbraio 1526 troviamo beni a Cenate fra i quali un sedime per suo uso e due piccoli per i massari, non si specifica se in castello . Il 16 marzo 1604 troviamo l’estimo di Giovanni Maria di Gerolamo Lupi, abitante nella vicinia di Sant’Alessandro della Croce, che possedeva nel castello un casamento da massaro con aia ed orto per suo uso, con una pezza di terra aratoria e vitata vicino alle case di pertiche 8, confinante ad est con Orazio Lupi e ad ovest con la strada, che valeva 100 scudi unitamente alla casa e si sarebbe affittata per 20 soldi alla pertica.

Il 20 giugno 1628, con atto del notaio Alessandro Terzi, divisero i beni Gerolamo, Flaminio, Fortunato, Giulio e Giovanni, figli legittimi e naturali del fu Orazio fu Gerolamo Lupi, che già da sei anni circa aveva fatto le parti con atto di Giovanni Battista Bottani e poi testamento con atto di Francesco Omboni. Nella porzione di Giulio vi fu una terra casata di diversi corpi, del valore di 1500 scudi, situata a Cenate nel castello, con ad est una piazza o strada, a sud in parte Pompeo ed in parte Alessandro Lupi, ad ovest un’altra terra dei Lupi, ed un brolo ed orto vicini di 23 pertiche con ad est la casa suddetta ed in parte Don Antonio Lupi ed Alessandro Lupi e da altri lati la strada, del valore 1200 scudi. A Fortunato toccò anche una terra sotto il castello.

Il 23 novembre 1630 Flaminio, Fortunato e Giulio procedettero alla divisione per i beni lasciati dal fratello Giovanni, morto ad ottobre. Vi erano anche proprietà del fu Gerolamo altro loro fratello. A Giulio fu assegnata tra l’altro una terra con diversi corpi di casa situata nel Comune di Cenate nel castello, confinante ad est con la piazza o strada, a sud in parte con Pompeo Lupi ed in parte con Alessandro Lupi, ad ovest con una terra broliva ed ortiva, di 20 pertiche, confinante ad est con la suddetta casa ed in parte con Don Antonio Lupi e con Alessandro Lupi, dalle altre tre parti con la strada. Troviamo anche una terra detta sotto il castello.

Da un inventario del 16 gennaio 1638 troviamo fra i beni delle figlie del fu Giulio Lupi una casa in Cenate detta il Castello con il brolo di 24 pertiche circa.

L’eredità di Alessandro fu Giovanni Maria Lupi andò per metà al conte Orazio, figlio ed erede di Flaminio, e per metà alla contessa Cornelia, moglie del conte cavalier Antonio Albani, e ad Alessandra, moglie del cavalier Giulio Lupi, come sorelle ed eredi del cavalier Carlo Casali, figlio ed erede di Laura Lupi, sorella di Alessandro.

Il 14 marzo 1707 il conte Giulio del conte Orazio, a nome del padre “come assoluto direttore della casa paterna”, come da un atto del 5 giugno 1700 del notaio Achille Isabelli e da un altro del 4 febbraio precedente del notaio Camillo Albani, da una parte, e dall’altra parte le sorelle Casali Alessandra in Lupi e Cornelia in Albani, divisero in due parti l’eredità. Il 4 giugno il conte Giulio vendette a nome del padre ai fratelli Corrado e cavalier Giulio fu Vittorio alcuni beni nella Panigaglia di Cenate, a lui pervenuti il 14 marzo. Il tutto venne diviso in due parti il 16 e nella parte toccata ad Alessandra troviamo due casette poste in castello con il pezzetto di terra attaccato alla “casetta del Collo” verso mattina e mezzogiorno a sera e monte, metà dell’orto verso mattina avanti la detta casetta con altro poco sito.


LA PARTE SUD

I passaggi di proprietà della parte sud furono ancora più numerosi. Ne furono infatti proprietarie le famiglie Suardi (-1441), Lupi (1442-1789), Benaglia (1789-1812), Cerri (1812-1838), Dolcini (1838-1843), Finardi (1843-1844), Lupi (1844-1864), Luogo Pio Elemosiniere di Bergamo (1864-1868), Lurà (1868-1908), Ratti (1908-1915), Colleoni (1915-1928), Guidotti e Oggioni (1928-1931), Gnecchi (1931-1935), Piazzoli (1935-).

In una polizza del 31 giugno 1582 dei fratelli minori Pompeo, Mario e Cesare fu Cesare, troviamo due sedimi, uno per uso ed abitazione padronale ed uno per uso ed abitazione massarizia, nel luogo di Cenate ed un orto posto nella fossa del castello. Fra i beni estimati ai tre fratelli troviamo una casa da padrone con orto e torchio, confinante ad est con una strada, ad ovest con Orazio Lupi, estimata un bagattino, ed una casa da massaro con aia ed orto in mezzo ad una pezza di terra.

Il 27 gennaio 1592 Pompeo e Cesare possedevano a Cenate una casa padronale con orto e torchio affittata per un carro di vino buono, che confinava ad est con una strada e ad ovest con Orazio, una casa da massaro con aia ed orto in mezzo ad un pezzo di terra.

Il 26 marzo 1612 i fratelli cavalier Fra Cesare e Pompeo divisero i beni a Cenate e Colognola; a Cesare toccò la possessione di Cenate, aratoria, vitata e prativa per un totale di 295 pertiche, comprese le case da padrone e da massaro e tutti i mobili di legname ed i boschi della Ferola di 173 pertiche. A Pompeo toccarono invece beni a Colognola, fra cui le case da padrone e da massaro con tutti i mobili ed altri beni.

Nel 1761 fra le proprietà di Cesare Filippo troviamo descritta una casa dominicale con orto di una pertica circa, per proprio uso, detta il Castello e Rocchetta, con la quale confinavano ad est una strada, a sud Adriano e Guerino fratelli Lupi, ad ovest in parte i suddetti ed in parte Carlo Lupi, a nord in parte il sito di sola proprietà di Cesare stesso e la piazza in comune con Carlo ed il brolo dello stesso.

Il 26 settembre 1786 monsignor Canonico Lupi nel suo testamento istituì eredi i conti Marco e Lanfranco Benaglio (o Benaglia) figli del fu conte Giacinto suoi cugini in quanto figli della sua zia paterna Lavinia Lupi, moglie del conte Giacinto ed in caso di morte sostituì loro il conte Giacinto di Marco. Dato che la sua casa di Cenate nel Castello non era suscettibile di divisione, ordinò che dividendo i suoi beni essa fosse posta in una parte sola. Nel caso in cui l’erede l’avesse voluta vendere si sarebbero dovuti preferire i conti Vittorio e Paolo Lupi od i loro discendenti.

I beni che erano estimati ai fratelli minori Pompeo, Mario e Cesare Lupi, passarono poi a Mario di Pompeo (-1641), a Mario suo figlio (1642-1697), al figlio di questi, Cesare Filippo (1694-1780) e quindi al Canonico Mario (1720-1789) ed il 24 febbraio 1795 ai conti Lanfranco e Marco fratelli Benaglia ed al conte Giacinto fu conte Marco il 22 marzo 1800 , che troviamo proprietario nel 1812 dei mappali 492, casa di villeggiatura ad uso proprio, 493 casa con torchio del vino, 493/2 giardino. Il 489 era zerbo coronato comune con i fratelli Lupi.

Per petizione 19 dicembre 1812 furono portati dal defunto Giacinto Benaglio a suo figlio Pietro ed il 17 novembre 1828 alla contessa Caterina fu Francesco Cerri vedova di Giacinto ed il 6 agosto 1838 al nobile Carlo Cerri ed alla contessa Doralice, vedova del conte Angelini, fratelli, fu Francesco .

Il 29 settembre 1838 con atto numero 2191 di repertorio di Pietro Bortolo Carminati fu Giuseppe notaio di Bergamo, Carlo Cerri e sua sorella Doralice, possidenti, domiciliati a Bergamo in contrada di San Giacomo 331 ed in contrada San Cassiano 339, venIl 29 settembre 1838 con atto numero 2191 di repertorio di Pietro Bortolo Carminati fu Giuseppe notaio di Bergamo, Carlo Cerri e sua sorella Doralice, possidenti, domiciliati a Bergamo in contrada di San Giacomo 331 ed in contrada San Cassiano 339, vendettero per 95000 lire austriache la possessione di Cenate, pervenuta loro per eredità della sorella Caterina, al professor Angelo fu Giovanni Dolcini domiciliato a Bergamo in contrada Sant’Orsola 1120. La possessione, situata nei Comuni di Cenate San Leone e San Martino, comprendeva la casa dominicale al luogo detto al Castello con cortile e giardinetto confinante ad est strada e sud ed ovest casa Lupi, nord piazzale comune.

Nel 1841 il Dolcini possedeva il mappale 489 piazza privata, la cui proprietà era contestata dai conti Lupi, 492 casa di villeggiatura, 493 orto ed altri ancora.

Il 28 gennaio 1843 con atto 2664 del notaio Evaristo Simone Ronzoni il professor Dolcini, con la mediazione di Giovanni Zanchi di Seriate, vendette al nobile Alessandro Finardi fu Antonio, domiciliato in contrada di San Salvatore 120 a Bergamo, tutti gli stabili posti nei Comuni di Cenate San Leone e San Martino, consistenti in casa dominicale, case masserizie e terreni, tranne alcuni nel Comune di Cenate San Leone, acquistati nel 1838. Vendette anche i vasi vinari nella cantina annessa alla casa dominicale e nel tinaro, nonché il torchio da vino e tutti gli attrezzi della cantina, escluse solo alcune botti per un massimo di 8 brente. Il prezzo fu di 114000 lire. Il pagamento di 70000 lire sarebbe dovuto andare ai fratelli Cerri a saldo dell’acquisto. La casa dominicale nel luogo detto al Castello, con cortile e giardinetto, era descritta nella nuova mappa censuaria ai mappali 492, 493 e 489 e disegnata nel tipo 3 giugno 1841 del perito Domenico Rossi (per noi irreperibile); confinava ad est strada, a sud ed ovest conti Lupi, a nord piazzale comune, per un’estensione di 2.14 pertiche.

Il 3 agosto 1844, con la mediazione del colono Michele Beretta di Cenate San Leone, il nobile Finardi vendette ai conti palatini Paolo, Giacomo e Vittorio fratelli Lupi fu Luigi di Bergamo tutti i beni acquistati nel 1843, fra cui il bosco Ferola e la casa dominicale in Cenate San Martino, detta il Castello, con cortile e giardino, confinante ad est strada, a sud ed ovest i compratori, a nord piazzale di uso comune, contraddistinta nella nuova mappa con i mappali 492, 493, 489 e descritta nei registri censuari della Commissaria di Trescore al numero 174, ma non censita. Il prezzo venne fissato in 32250 lire, di cui 25250 per la casa, comprendente anche alcuni vasi vinari per una capacità di circa 200 brente, per 4 tine, il torchio e gli attrezzi relativi alla cantina, con decorrenza dal 30 novembre successivo. Questa scrittura privata il 5 agosto 1844 fu consegnata da Francesco fu Cristoforo Corti di Bergamo, a nome della fraterna Lupi al notaio dottor Angelo Custode fu dottor fisico Carlo Domenico Locatelli che la registrò al numero 3951.

Il conte Vittorio contrasse un mutuo con il Luogo Pio Elemosiniere di Bergamo il 13 aprile 1860 con atto numero 306 del notaio Emanuele Maironi a Pontida. A seguito di questo mutuo i beni passarono alla Misericordia Maggiore di Bergamo, amministrata dalla Congregazione di Carità, alla quale per petizione 6 febbraio 1864 furono accatastati i mappali 496b, 486, 483, 484, 485, 489b, 492, 493.

Il tutto il 22 giugno 1868 passò a Giorgio, Agostino e Damiano fratelli fu Carlo Lurà.

Il 1° Luglio 1877 il mappale 492 passò al Catasto Urbano. Il 12 ottobre 1880 il tutto fu accatastato solo a Giorgio ed Agostino ed il 20 febbraio 1881 con voltura 5, a seguito di divisioni, toccò solo ad Agostino. Per successione data la sua morte avvenuta il 21 dicembre 1906 passò ad Ercole e Daniele fu Carlo Lurà, Angelo detto Nino Lurà di Ercole ed Itala Repellini di Guglielmo usufruttuari ed Opera pia bergamasca per la salute dei fanciulli in Bergamo proprietari.

Per vendita con atto 4 febbraio 1908 del notaio Lauro Leidi di Bergamo numero 3226 passò a Giovanni fu Felice Ratti. Per atto del notaio Nosari di Romano in data 3 febbraio 1915 numero 4667 passò al nobile Giulio Colleoni (1880-) fu Marino.

Venne poi venduto ad Ugo di Cesare Guidotti e Cesare fu Attilio Oggioni per atto 2111 del notaio dottor Lorenzo Carnazzi di Treviglio dell’11 febbraio 1928.

Da lui passò per atto 28 ottobre 1931 di repertorio 7215/4132 del notaio Giuseppe Personeni di Selino ad Antonio Gnecchi fu Antonio. Data la sua morte avvenuta il 28 agosto 1932 passò ai figli Maddalena, Vittorio ed Anna, con usufrutto parziale per la madre Carolina Testoni fu Battista. Venne poi con atto di Giuseppe Personeni numero 9511 del 26 marzo 1935 venduto ad Alberto Piazzoli fu Luigi. Il mappale 492/2 venne venduto con atto dottor Gian-Mario Grazioli di Martinengo 2904 del 20 luglio 1955 ad Angelo Piazzoli.


LA PARTE DEL RAMO DI BORGO SAN TOMASO

La porzione meridionale, ora in gran parte demolita, appartenne al ramo di Borgo San Tomaso e confluì poi in quello di Pignolo.

Il 15 gennaio 1580 nella polizza dei fratelli Adriano ed Orazio Lupi fu Pietro fu Detesalvo, estimati nella vicinia di Sant’Alessandro della Croce, troviamo beni ereditati dal fu Guerino Lupi a Cenate, Calcinate, Mologno e Colognola di Val Cavallina. A Cenate troviamo una casa in castello per abitazione dei padroni, uno stallo nella villa per abitazione dei massari, una terra contigua allo stallo aratoria e vitata, detta del Dosso, confinante ad est con la strada, ad ovest e a nord con Pietro Lupi. Il 18 nella polizza di Pietro Lupi abitante nella vicinia di Sant’Alessandro della Croce troviamo nel castello tre corpi di case “da fabricare” per suo uso con alcuni bregni ed una pertica d’orto nella villa ed uno stalletto da fabbricare per uso del massaro, con confinanti ad est il fu Guerino Lupi, suo fratello, e ad ovest la strada comune, ed inoltre una terra aratoria e vitata geriva contigua allo stalletto, detta il Dosso, confinante ad est con il fu Guerino ed ad ovest con la strada, di 10:12:6:5 pertiche. In una polizza di Orazio, figlio separato del vivente Pietro, in data 30 marzo 1590 troviamo fra i beni pervenutigli per divisione con il fratello Adriano, di provenienza paterna e del fu zio Guerino, una casa nel castello detta la Bocchetta, con ad est gli eredi di Cesare, a sud il fratello Adriano e poco distante o contiguo al castello un broletto nel quale si faceva orto, di circa 2 pertiche, con ad est, nord e ovest la strada, di suo uso. La stessa polizza venne poi ripresentata dal figlio Corrado il 26 giugno 1609.

In una polizza forse del 1592 di Vittorio, Salvo, Scipione, Antonio e Pietro figli ed eredi di Adriano Lupi si citano una casa in castello, con 22 tavole, 21 piedi e 4 once di orto per uso del padrone confinanti a nord in parte con Orazio Lupi ed in parte con gli eredi di Cesare Lupi ed a sud con la strada ed una terra aratoria e vitata e prativa detta la Sorte, contigua al castello, con ad est la strada e ad ovest gli eredi di Gerolamo Lupi.

Il 10 luglio 1725 nel testamento di Vittorio fu Adriano Lupi, che governò casa dal 1680, troviamo mobili del suo appartamento nel castello di Cenate. Si citano anche le case a Cenate abitate dal fratello e la casa del forno. Si ricordano anche vasi vinari nella cantina grande di Cenate a basso.

Nel 1800, alla morte dell’abate Vittorio Lupi, ultimo esponente di questo ramo, si aprì una controversia fra il conte Paolo Lupi ed il conte Camillo Caleppio per i suoi beni, provenienti dal fedecommesso lasciato da Guerino Lupi nel 1576. Il 30 o 31 maggio si ebbe una sentenza a favore del conte Paolo ed un successivo atto di cessione il 12 settembre . La proprietà di questa parte del castello fu così riunita nelle mani dei Lupi di Pignolo, proprietari della parte nord.


LA PARTE NORD

La parte nord passò nelle mani di varie famiglie: Suardi (-1441), Lupi (1442-1864), Scarpini (1864-1910), Tombini (1910-1916), Albini (1916-1997) ed è stata oggi frazionata fra più proprietari.

Nel 1812 troviamo che erano proprietà di Santo e fratelli Lupi fu Paolo i mappali 482 brolo, 483 e 484 vigna e ronco con frutti, 485 ortaglia, 486 casa da massaro, 487 casa di villeggiatura ad uso proprio, 488 oratorio sotto il titolo di San Giovanni, 490 vigna a ronco con moroni e frutti, 491 giardino, 494 ortaglia. Il 489 era zerbo moronato comune con Giacinto Benaglio.

Il 14 novembre 1864 per petizione 11 i mappali 482, 487, 489a, 491, 948, 949, 950, 488, 490, 992 furono accatastati da Giulio fu Luigi Lupi a Paolo fu Antonio Scarpini.

Nel dicembre 1888 passarono ai fratelli Giulio e Giuseppe fu Paolo Scarpini, con usufrutto per la madre Luigia Valerio fu Carlo sino al 1891. Alla morte di Giuseppe, avvenuta il 23 aprile 1898, pervennero al fratello per successione.

Il 12 novembre 1910, con atto numero 3690 del notaio Francesco Nosari, Giulio Scarpini di Milano vendette al dottor Bortolo fu Francesco Tombini di Cenate Sotto il podere di Cenate Sotto comprendente anche la parte del castello. Il dottor Tombini era medico, ma anche grande esperto e modernizzatore dell’agricoltura. Si era dedicato con grande passione a questa sua attività e per questo aveva acquistato anche la possessione del Gavarno, ma tre anni di grandine ne causarono il fallimento e con sentenza del tribunale del 24 luglio 1915 venne decisa la vendita all’asta pubblica delle sue proprietà delegando il dottor Leonardo Pellegrini, notaio in Bergamo. I beni, dopo stima degli ingegneri Gavazzi e Milesi, vennero divisi in tre poderi: Gavarno, Cenate e Zanica. Il 24 agosto l’asta andò deserta. I poderi di Gavarno e Zanica vennero in seguito venduti e per il podere di Cenate fece un’offerta la contessa Carolina Stanga-Offredi vedova Mina-Bolzesi di Cremona, che però poi la ritirò.

L’11 marzo 1916 il dottor Silvio di Giovanni Albini (1880-1968) e la moglie nobile Laura fu Marino Colleoni , entrambi abitanti a Bergamo, acquistarono per 124000 lire dal ragionier Francesco fu Giuseppe Bettinelli di Bergamo, curatore del fallimento Tombini, con atto di Luigi Bonomi di Bergamo, il podere posto a Cenate.

La proprietà passò poi ai loro figli e nipoti. Il 24 marzo 1997 con atto del notaio avvocato Rodolfo Foglieni, residente in Piazza Brembana, Marino, Giovanni Gaspare, Maria Pia, Erminia, Andrea, Giovanni, Monica, Stefano, Fabio, Giovanni Carlo, Laura Albini vendettero all’Immobiliare Borgosale srl con sede in Bergamo ed a Roberto Finazzi, Franco Offredi, Simona Luisa Leggeri, Roberto Vittorio Bozzetti, Manuela Arnoldi, Carlo Carrara, Pietro Leggeri, Elena Leggeri. William Paolo Leggeri, Silvio Albini i mappali 487/1, 487/2, 487/3, 487/4, 491, 948, 949, 950, 2758 (ex 488/b), 2760 (ex 489/a), 2759 (ex 488/c), 2761 (ex 489/b). Gli acquirenti diedero mandato all’architetto Tullio Leggeri di realizzare i lavori di ristrutturazione.